

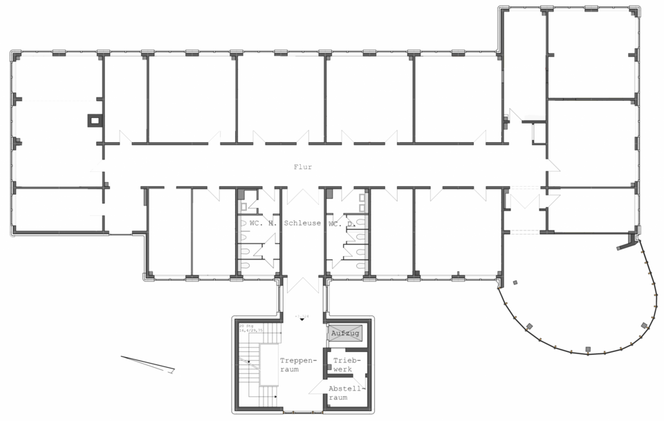
Zur Vermietung stehen zwei jeweils ca. 630 m² große Etagen. Die Etagen können im Ganzen oder jeweils zur Hälfte gemietet werden. Der Innenausbau der Mietflächen erfolgt nach Mieterwunsch.


Der DRK Kreisverband hat das Gebäude in der Zschortauer Str. 44, 04129 Leipzig, im Juli 2022 erworben, um hier die neue Kreisgeschäftsstelle mit Verwaltungssitz, Ausbildungs- und Beratungszentrum einzurichten.
Das Bürogebäude mit insgesamt rund 4.100 m² Nutzfläche auf 6 Etagen wurde 1990/91errichtet und lange Jahre von der Signal Iduna Versicherung genutzt. Das Gebäude steht derzeit leer und wird grundlegend innensaniert. Die energetische Sanierung inkl. Erneuerung der Fenster und Fassade wird zu einem späteren Zeitpunkt durchgeführt.

Das Objekt befindet sich im Mischgebiet in Leipzig-Eutritzsch. Eutritzsch grenzt nördlich an die Innenstadt Leipzigs an. Das Objekt ist verkehrstechnisch sehr gut angebunden.
Drei ÖPNV-Haltestellen (S-Bahn, Bus &Tram) befinden sich in 100 bis 750 Metern Entfernung. Über die B2/Maximilianallee fährt man in ca. 15 Minuten in die Innenstadt (5,2 km) und in nur 5 Minuten zur Autobahn 14 (4 km).
Das Klinikum St. Georg ist gerade einmal 1,6 km entfernt. Die Nahversorgung ist über einen Norma und einen Rewe-Markt im Umkreis von 500 m gesichert.